智慧•勤奋•开拓
始终秉承“创新品,做精品”的企业经营风格
咨询热线
0574-63320958
BII型竖式压力棒上销
B2YSX3-6833D
BII型竖式压力棒上销

产品名称

型号

件号

适配牵伸

产品特征

竖式压力棒上销

BII

B2YSX3-6833D

平牵簧加压和气加压

上销前沿扣固定,弹性向上

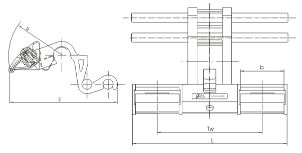
                                                    产品结构尺寸参数范围

型号

TW

b

R

E

B型系列

68.4-75

28.4

35

66.6

 


公司地址:
浙江省慈溪市周巷镇环城北路355号
传真:
0574-63320938    0574-63330838
电话:
0574-63320958    0574-63330188
手机:
(0)13606882128